Playa Hermosa, 2022
Proyecto de
FormafatalEtiquetas
Arquitectura
This project is the very first “rammed earth” implementation in Costa Rica. We completely used clay soil from the excavations for the construction of all perimeter bearing walls. Near Uvita town, on a plot of 11,000 square meters at a height of 300 m above the sea, I designed two small villas on a hill overgrown with a jungle. Both villas, partly levitating above the steep southern slope, are designed for short-term recreational rentals. The built-up area of each of them is 90 m2.
My intention was to design sustainable houses with biophilic interiors, which will be sophisticatedly thought-up and at the same time their shaping will be strongly minimalist and simple. No unnecessary extra element, but also nothing to miss. The architecture of villas is deliberate with its thin and sharp lines in contrast to lush tropical vegetation, but the chosen materials and colors are perfectly coinciding with the surroundings.
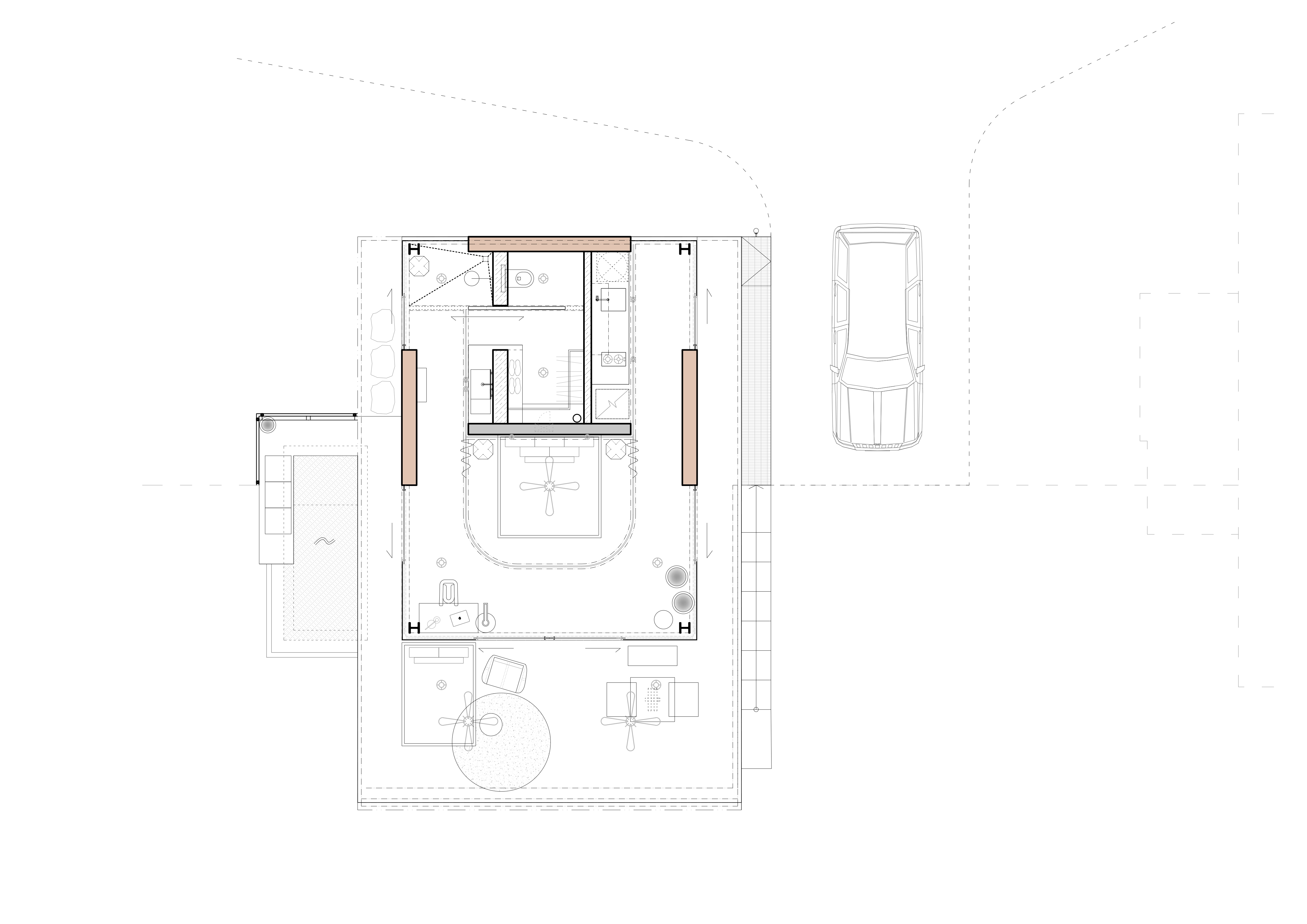
Both villas are architecturally the same. Materials, floor plan layout, or orientation towards cardinal points are also identical. However, it differs in the interior, especially by its color concept, which is partly reflected also in the exteriors. The architectural design is based on the genius loci - on the orientation of the building plot toward the endless view of the Pacific Ocean and the morphology of the terrain. The color concept of interiors responds to the energies that were perceived in the location of the villas before their construction.
Although the villas are only 12 m apart, each of them has clearly different vibrations that I reflected in the interior design. Jaspis Villa (jaspis = jasper, bright villa) is a reflection of yin energy. It is connected to the ocean and sky, not only visually, but also with its vibrations. With a color concept in sand shades, I respond to this interconnection. Nefrit Villa (nefrit = jade, dark villa) is a reflection of yang energy. In the Nefrit villa, you can feel the connection between the ground and the jungle. Here, too, the chosen color concept is a reaction to these energies and the red-terracotta color of the concrete floor transmits the shade of local soil to the interior of the house. Upon arrival, both villas seem very inconspicuous, and humble.
On the sides, they are lined with newly planted tropical plants. But as soon as you pass through the villa, further towards the levitating terraces, after a few steps, the view of the ocean is opening, and you will find yourself in the generous space of the main bedroom with adjacent terraces and infinity plunge pool. As if you suddenly find yourself in a different villa other than you entered. I put an extreme emphasis on all construction – architectural details and their mutual constraints. The raw visual materials of rammed earth walls and concrete are complemented by the structural steel H-beams, supporting a concrete monolithic ceiling slab.
The girders and ring beam of the house are visible only in the upper face of the roof, which is lined with a pair of steel “U” profiles. They also fulfill the function of the roof attic. All facades oriented to endless views of the ocean are designed from frameless glass. The profiles of sliding and solid parts of the glass facades are recessed into the grooves in the concrete ceiling slab. In this way was also applied the installation of interior lighting rails and the connecting rail for the mosquito net and the curtains around the bed.
The concrete floor slab is covered with a non-slip structured cement screed, which is different in each villa. The remaining interior walls including concrete custom-designed solid furniture, are also on the surface of cement screeds, but here in a smooth matte finish. I chose the materials as durable as possible considering the Costa Rican climate and high humidity. To realize the clay "Rammed Earth" walls I invited an experienced specialist from Brazil, the owner of Terra Compacta company because in Costa Rica no one had any experience with this construction method.
Daniel Mantovani from Terra Compact trained several local craftsmen and together they can attribute their first place to realize Rammed Earth architecture in Costa Rica. Minimalist architecture is also reflected in interiors, where there is no door except for the large-format sliding panel in the section of the shower and toilet. It also fulfills the function of a hanger wall with a large mirror. The equipment of the interiors is mostly custom-made. The kitchen desk, sink, shelves, solitary bedside tables, or bench are made from concrete.
For some of the concrete solitaires, I was inspired by the work of the Belgian design studio Bram Vander-Beke. The creation of this studio is very close to me. Other furniture, luminaires, accessories, and art were carefully selected with regard to originality, often directly from designers across all continents.











































