
PhotographerWeiqi Jin

PhotographerWeiqi Jin

PhotographerWeiqi Jin
Site conditions: advantages and challenges coexisting. The building is located in Shuangyue Bay Central Park, Pinghai Town, Huizhou City, Guangdong Province, China. The park is between the ancient town of Pinghai and the sea, not far from the famous Shuangyue Bay Turtle Reserve. The overall terrain of the park is high in the north and low in the south, with hills and valleys in the north and the sea in the south. The project base is close to the center of the park and is an independent and prominent "peninsula-shaped" hill. The trend of the hill is from northeast to southwest, so the view in the north is dominated by hills and valleys, and the view in the south is 270 degrees of excellent sea view. The hills in the park are soft in shape and not magnificent, but there are a number of boulders, which provide important support for the shaping of the landscape.
There are also challenges in the base: several residential buildings exist in the east and southeast of the base, and the high volume of the residence blocks the sight of the building to a certain extent. In addition, the height of the library must be strictly controlled to avoid blocking the sight of low-rise residents on the north side of the building to watch the sea. There is a multi-story building southwest of the park, the appearance is not ideal, and it also has a negative impact on the sea view of the library.
Location and shape: a white library under a pool of water. The design strives to integrate the cultural attribute of the library, the environmental attribute of the site, and the public attribute of contemporary society. The location of the building is planned at the end of the mountain top and arranged at the cliff mouth according to the topographic height difference. The building is integrated with the hill and becomes a part of the site. Such treatment can not only make the library have the largest viewing surface, but also control the height of the building to the greatest extent on the premise of reducing the amount of earthwork, without blocking the view of the sea of the residence behind.
The modeling of the library strives to have poetic tension: looking down from a high place, the building is very geometric - a circle plus a straight line. The plane shape of the main part of the building is circular, and the straight line is the outdoor corridor and long wall, which introduces people from the top of the hill into the building. The whole library is white, and the edges of the corridor, long wall and roof strengthen the sense of geometric composition. The section of the building roof is bowl-shaped, and the transparent glass in the reading area gives the roof a sense of suspension. Inside the bowl-shaped roof is a pool, which gives the building a kind of dramatic implication - an underwater library.
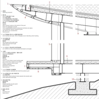
The long wall not only shields the unfavorable factors in the southwest of the site but also plays a guiding role. It guides people's attention to the pool and the sea and leads readers to approach and enter the building along this specific line. At sunset, before the sun falls into the sea, there will be a few minutes that the setting sun lengthens the shadows along the long wall and corridor. This adds a romantic color to the building.
Spatial sequence: overlapping of light and dark, opening and closing, circuitousness and straightness
The process of entering the library is not simple. Because the building is located on a hill, the architects designed a tortuous path on the north slope of the hill. Readers need to step up and understand the pain of learning in their slightly tired bodies. Therefore, it is also called "a path to the mountain of books". When you reach the top of the mountain, you can see a straight corridor and a long wall, which guide people toward the sea and building with a "tough" attitude. What readers need to do is to follow this arrangement and be guided into the underwater library. The main use space of the building is located below the pool. The process of entering the building is a journey to re-understand nature and oneself. To enter the building, you need to go down the corridor and "dive in" under the pool.
The architects hope to build the interior into a series of dramatic spaces with light and dark, opening and closing overlapping. The first scene for people to enter the building is the porch, which is located at the end of the outdoor corridor, a relatively narrow transition space. Turning left from the porch, you will enter the circular space in the middle of the building. The interface of the space is simple and meditative. The architects hope that this place is mysterious and dark. It provides a guide for entering the reading area. Some small exhibitions or parties can also be held here. The dark space has a "hole" connected with the reading space, which is located in the outer ring of the building and is a bright semi-circular space. It has nearly 270 degrees of floor glass, transparent and open, through which you can see the blue sky and sea. Another entrance and exit of the building are located in the southeast, from where people can leave the library and then bypass boulders in the site circuitously to return to the top of the hill.
Indoor atmosphere: light, color, and materials deducing the theme of space. The indoor tone of the reading area is mainly white, light gray and other bright colors and the curve shape is used to create a relaxing and fashionable atmosphere. Seats and small tables are placed along the outer glass curtain wall, where readers can read quietly and overlook the scenery. The bookshelves are arranged in a ring along the inner wall and extend outward in the ceiling and ground areas to form a cloud-like shape. The part extending to the ground also becomes a free reading area, where some readers who do not want to sit upright can enjoy the afternoon time with books here, leaning, or lolling.
Two independent spaces are arranged on both sides of the reading area: VIP tea room and restrooms. The VIP tea room is an introspective space. The interior continues the simple style, with tea tables and seats, which can be used for solitude or for talks. The room is specially decorated with an original stone. Sitting while facing the stone, you can also have a close view of the beauty of the mountain and stone while reading and drinking tea. For the restrooms, a dramatic effect is specially created, and the contrast colors and optical fiber device both give people physical hints.
The water bar is located between the rest rooms and the reading area, which not only divides the dynamic and static area but also plays a transitional role. The ceiling part of the bar area has a light opening to the pool on the roof. The architects deliberately designed a color device on the facade on the south side of the daylighting opening. Through it, the sunlight is rendered as colored light, which is scattered into the space in a blurred form, adding a bit of charm to the building.
Pool and landscape: a dialogue between man, the sea, and the blue sky. The landscape of the project strives to be pure. At the base of the building, the vegetation on the top of the hill is mainly low-awn grass and green plants, which set off the clean shape of the building. Several boulders in the site are carefully preserved and combined with the path to becoming the prospect while watching the building. At the top of the hill, the white corridor and long wall become artifacts in the natural landscape. The pure geometric shapes well attract the attention of users and lead people in the direction of the roof pool and the sea.
The roof pool is somewhat utopian sense. The architects and owners hope to surprise users and even this small city in the south. Guests can follow the hidden path on the north side of the long wall to the small platform in the pool, and reach the daylighting opening and platform located in the middle of the pool through the stepping stones on the water surface. There is no fence at the edge of the pool, which ensures the integrity and purity of the building. However, the architects used the stepping stones and the water depth around the platform to restrict people from entering the pool to ensure safety. From a specific location on the top of the hill, people can see the sea level in the distance by glancing over the pool. Water, sky, and the sea are integrated here and now.
Conclusion: building with both physical experience and visual communication. The design of this library continues the consistent design concept of the 3andwich Design team for landscape architecture. The starting point of the design starts from the site. The building is properly embedded in the site, but it has a sense of existence and becomes the connection point between people and the environment. Architecture does not deliberately pursue natural imitation. The concise geometry shows abstraction as an artifact and respect for the environment. At the same time, the building is full of drama and narrative. It does not deliberately avoid visualization and dissemination. The architects hope that the building can be competent at both ends of on-site physical experience and visual communication.

PhotographerWeiqi Jin

PhotographerWeiqi Jin






























