Project Header Image
    Home/

    Sala Equis

Sala Equis

Madrid, 2017

Project by

Plantea Estudio

• [Photographer]

By

Alicia Macias

• [Photographer]

By

Alicia Macias

• [Photographer]

By

Alicia Macias
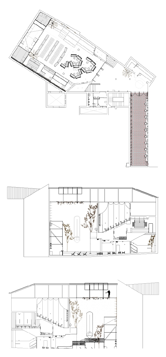
Sala Equis is a set of spaces collected in the structure of an old cinema. This had fallen into disuse since the closure of the room X that occupied it. The promoter wanted to turn it into a new concept of cinema. The idea encompassed the traditional version of the cinema with other activities. Live music, performances, presentations or exhibitions are also possible, all accompanied by the drink and food that is served in the different areas.
The existing gallery has been transformed into a multifunctional space, illuminated by the large skylight open on the roof. Under the screen is the bar, and in front of it, the public sitting in the stands of plywood board, the fixed benches of iron pipe and cushions, the hammocks of pine and canvas or the swings of 11 meters high, arranged as a small public square.
The old amphitheater has been converted into a movie theater, covered in velvet. Next to this room, the old ambigú is used as a cocktail bar, collected in a darker atmosphere. The access passage, with a bench and tables, is now an intermediate space between the street and the inner square.
Plantea has designed environments ranging from the spontaneity of the square and the passageway to the sophistication of the cinema and the ambigú.
The vegetation brings character of 'exterior' to the square, and the signs, in the manner of the old American cinemas, return a classic tone to the concept.

Design Team:

Plantea Estudio

• [Photographer]

By

Alicia Macias

• [Photographer]

By

Alicia Macias

Project Gallery

Latest products in our catalog