Project Header Image
    Home/

    Multi-sport Pavilion And Classroom Complex

Multi-sport Pavilion And Classroom Complex

Madrid, 2017

• [Photographer]

By

Javier Callejas

• [Photographer]

By

Javier Callejas

• [Photographer]

By

Javier Callejas
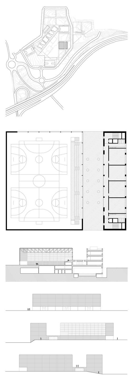
Designed for the campus of the Francisco de Vitoria University in Pozuelo (Madrid), the building houses a sports center and classroom complex. It includes the use of sports halls, multi-purpose rooms, a gymnasium, swimming pool, physiotherapy, etc. The sports complex can also be used as a large multi-purpose area and meeting hall, facilitating a range of university activities.
The design of the building is restrained and volumetrically adapted to the general layout of the campus in terms of maximum height and alignment. And it is intended to clearly differentiate the sports and teaching areas in terms of volume and façade material. The fundamental element of the project is a large translucent box of light, 60x50x12m, filtered and controlled, entering into a spatial relationship with the main square of the campus.
Two clean, well-defined boxes are joined together by a low-rise building whose roof becomes an inter-connecting patio.
The sports pavilion is designed with lightness in mind, in GRC glass fiber reinforced concrete, unlike the more closed classroom complex and low interconnecting building. In the volume of the sports complex the orientation of the various sides are valued differently, so that the facades of the southern dihedral, more exposed to sunlight, are enclosed in a prefabricated panel of GRC glass fiber reinforced concrete, while those of the northern dihedral are in translucent glass. The southwestern facade features a low strip of transparent glass highlighting the link with the main square of the campus. And this mechanism of transparency is repeated on the north eastern facade facing the upper patio. Thus a visual relationship is created between the square and the sports complex, while the southwestern façade of the classroom complex becomes a backdrop to the complex as a whole.
The structure of the pavilion is in steel: a grid of pillars and beams on the facades and trusses to resolve the great roof span. All painted in white. The remainder of the structure is in reinforced concrete, with the unique feature of wide angled beams over the basement swimming-pool area.
The result is a building of great sobriety and formal restraint.
Universidad Francisco de Vitoria
Alberto Campo Baeza
Collaborators architects: Ignacio Aguirre López, Alejandro Cervilla García, María Pérez de Camino Díez, Tommaso Campiotti, Miguel Ciria Hernández, Elena Jiménez Sánchez, Imanol Iparraguirre, María Moura
Project Manager: Francisco Navarro, María Lamela, Francisco Armesto
Structure: Andrés Rubio Morán
Mechanical engineer: Úrculo Ingenieros
Quantity Surveyor: Francisco Melchor Gallego
Glass consultant: José Pablo Calvo
Contractor: Clásica Urbana (Jesús Díaz Poblaciones, Francisco Martínez Reche, Jorge Garriga, Mónica Grau)

• [Photographer]

By

Javier Callejas

• [Photographer]

By

Javier Callejas

Project Gallery

Latest products in our catalog