Project Header Image
    Home/

    Montcrest School Redevelopment

Montcrest School Redevelopment

Toronto, 2019

Project by

Montgomery Sisam Architects

PhotographerYounes Bounhar

PhotographerYounes Bounhar

PhotographerYounes Bounhar

Twenty-first century education is about learning with people, not from people. It is predicated on relationships: relationships with the self, with peers, with educators, with the community, and with the world. Creating spaces that serve these relationships is hard enough when designing a new school. It is an even greater challenge when working with an existing school. This was particularly evident in the Montcrest School Redevelopment project.
Montcrest School is a co-educational, JK-8, independent institution. Since it was founded in 1961, the School has prided itself on offering a caring and nurturing environment that welcomes a wide range of learners.
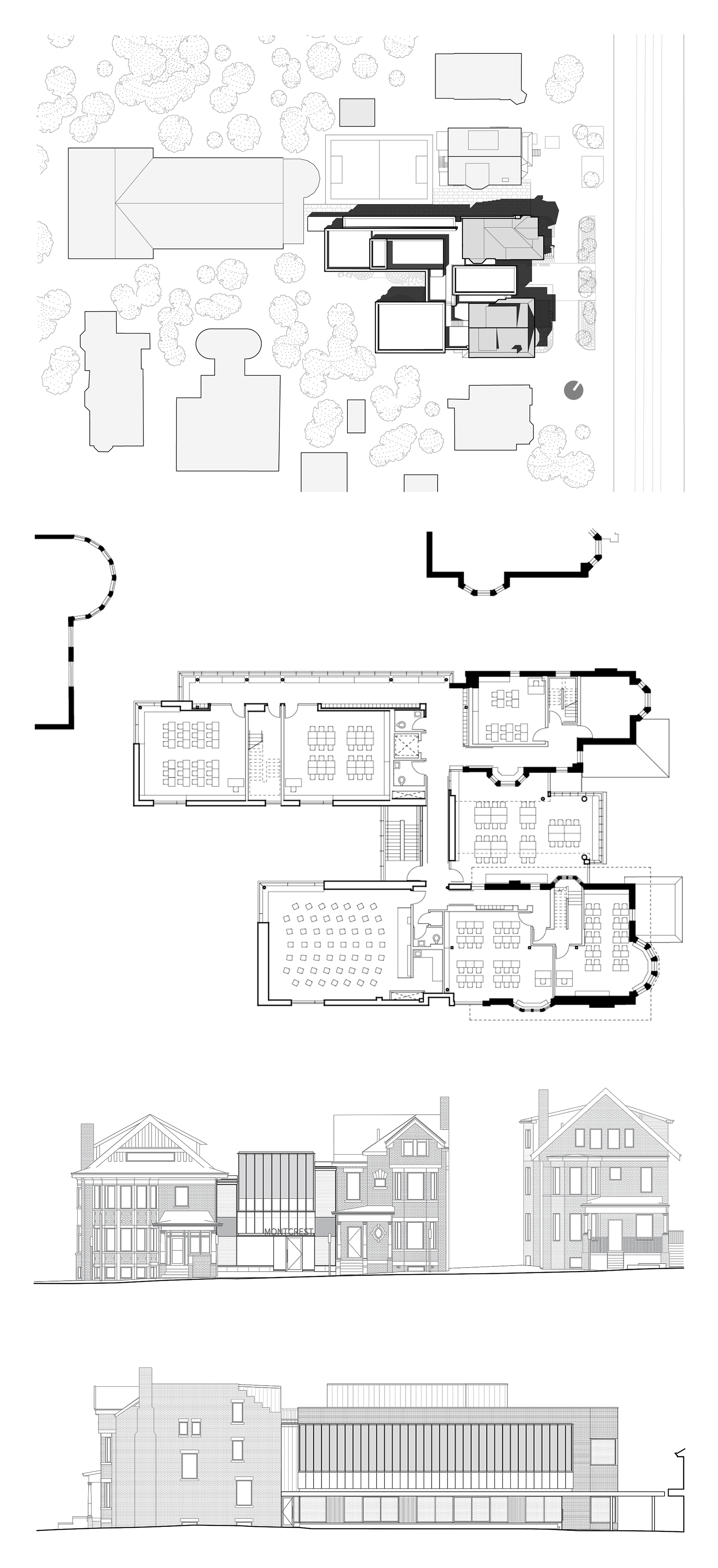
The Montcrest campus has been stitched together over nearly 50 years. It features a unique collection of Queen Anne revival homes that date back to the early 1900s. The homes have been altered many times to suit different functions, both before and after they were acquired by the School. Today, they form part of a city-designated heritage precinct in Toronto’s Riverdale community.
In 2015, Montcrest made the decision to undertake its largest and most aggressive renovation to date. The challenge of this renovation was to evolve the School’s infrastructure without compromising its distinguishing culture, character or community.
The heritage house-forms had to stay
The unique residential qualities of the campus reflect Montcrest’s commitment to its core values, creating a school that feels like home. The home is where we build our first relationships. The home is meant to be a familiar, comforting and nurturing place.
Preserving the heritage house-forms and these associations was imperative to upholding Montcrest’s commitment to creating a safe, supportive environment for student-centred learning.
Smaller spaces in the heritage house-forms help cultivate more intimate, individualized relationships. They also help nurture the self-confidence students need to become active participants in the learning process.
The fireplaces had to stay
The design scheme also retains all character-defining elements of the heritage house-forms – from pitched rooves, front porches and bay windows to the original brickwork, banisters, wood finishes and grand fireplaces. These familiar elements of the home debunk the idea of a cold, sterile institution. Instead, they inform the image and idea of a warmer, more accepting, attentive milieu.
The beloved backyard had to stay
Although Montcrest is an urban school, it has all the outdoor amenities of a rural or suburban home. Montcrest sees these amenities as integral to their students’ wellness, character development and social-emotional learning. And so, the design scheme was careful to minimize any disturbance to these beloved campus features. The backyard had to stay. The mini turf field remains untouched, as does the natural topography of the ravine edge that weaves the different houses together.
As well, connections to the neighbourhood park and community garden still figure prominently, allowing opportunities for community partnerships and outdoor learning to continue to flourish.
But spaces had to get bigger
The School’s original house-forms are constrained in both scale and proportion. Many of the rooms are ill suited to their 21st century functions. The design scheme therefore proposed an addition that would bring a series of larger spaces to the campus.
The addition sits modestly between two of the existing houses that front the main thoroughfare. It features right-sized classrooms for art, music, and science as well as general instruction. These larger rooms are well-suited to the size and energy of older students.
They are also more flexible. Teachers can pull desks apart and group them together to suit different activities and circulate more easily within the classroom. Students can work on independent assignments more comfortably. They can also break out easily into small groups for hands-on activities.
The addition’s ground floor serves as the new main entrance to the School. It contains a large, open lobby-atrium that improves the coordination of day-to-day activities like lunch pick-up, and it doubles as alternate activity space during inclement weather days.
With both the atrium and larger learning spaces, the School is also better equipped host open houses, outreach events, family nights and faculty socials – all hallmarks of an inclusive and engaged school community.
Spaces had to become more varied
Mixing new and existing buildings creates an important variety of spaces. Having a greater assortment of classrooms suits Montcrest’s regular and reduced class sizes. Flexible floor plans and writable wall surfaces make these classrooms adaptable to different needs and preferences. Students and teachers now take ownership of their space and are more inspired to take risks, turning their ideas into actions.
New social learning spaces now exist between classrooms. Fitted with casual seating, they add depth and diversity to the academic day and bolster opportunities for peer-to-peer connection. Newly vacated spaces have been put to new, more appropriate uses – administrative functions, break out spaces or dedicated classrooms for younger age groups. They have also been adapted to help improve existing initiatives – for example, the makerspace that supports creative and entrepreneurial pursuits and the after-school program that offers extended pick-up hours.
Spaces had to become more fluid
Previously, each Montcrest School house accommodated a select grade or grouping of grades and was known for its unique character. It would function somewhat independently of its fellows. Exchange between the houses was therefore limited. The notion of a cohesive campus was flawed.
The transparent volume of the addition gives a new identity and definition to the campus without compromising the rhythm of the street. The main entrance is now clearly defined; the atrium has become the nucleus of the campus. Together, these new spaces encourage a free flow of movement between the drop off and neighbouring School buildings.
The addition also creates a seamless, fully accessibly connection between two of the existing heritage houses. Grades 6, 7 and 8 are now consolidated in the three adjoining buildings to promote greater comradery and a richer sense of community between senior students.
Spaces had to get brighter
The addition features glazed galleries along the field edge, large windows in all new classrooms, and a new curtain wall in the atrium that frames the main stair and looks out onto a new learning garden.
These healthy spaces boost student mental wellness by bringing more daylight and air into the learning environment. They also promote positive, thoughtful relationships between students and the world around them.
The Take-away: Educational design is about opportunity
Montcrest School recognizes the importance of relationships in support of student-centred learning. Relationships build resilience, courage, integrity, self-responsibility and global consciousness – qualities that are integral to students’ personal and professional lives in the 21st century.
As architects, we understand that the quality and functionality of space determines our capacity for relationship-building. The Montcrest School Redevelopment is a keen reminder that while design is often an exercise in problem solving, it is also aspirational in its mandate. Design in education is about opportunity. It is about the next generation. It is about shaping the future.

Design Team:

Montgomery Sisam Architects
Principal-in-Charge: Daniel Ling
Support Principal: Terry Montgomery
Project Manager: Enda McDonagh
Contract Administrators: Greg Gosnell and Brad Collard
Design Team: Matteo Terzi, Alistair Vaz and Dennis Silva
Structural: Read Jones Christoffersen
Mechanical: GPY + Associates
Electrical: Fortech Engineering
Acoustics: Swallow
Heritage Consultants: Goldsmith Borgal & Company
Landscape Design : PMA
Project Management : Colliers
Contractor and Construction Manager: Eastern

PhotographerYounes Bounhar

PhotographerYounes Bounhar

Project Gallery