Project Header Image
    Startseite/

    Wohnbau in Lehrte

Wohnbau in Lehrte

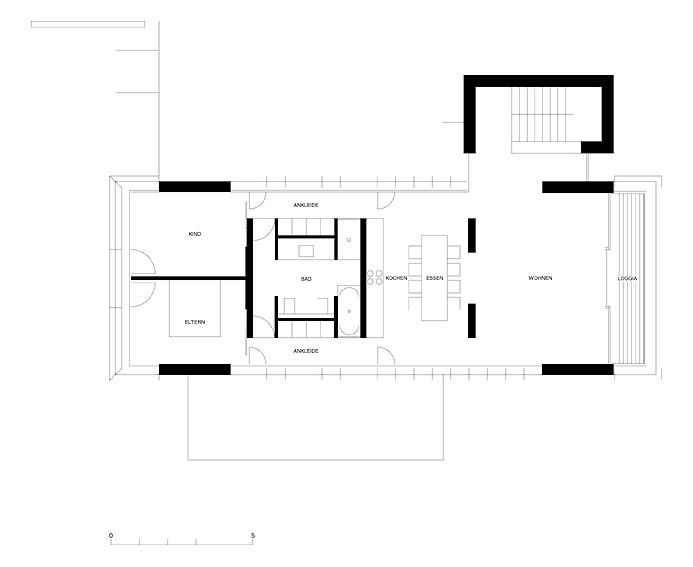
Der Wohnriegel legt sich als eigenständiges Element über die Bestandsgaragen des Wohnbaus aus den 60er Jahren. Die additive Fügung wird durch das zweiseitige Auskragen des Riegels in ihrer Wirkung verstärkt. Die Massivität des anthrazit durchgefärbten Betonelements begibt sich in ein spannungsreiches Wechselspiel mit den transluzenten Glaslamellen. Die Lamellen dienen sowohl der Gliederung der Fassaden als auch der Minderung ungewünschter Einblicke. Eine der vorhandenen Garagen wurde zum neuen Eingangsbereich umgenutzt. Das Hinaufgehen in den Wohnbereich wird durch einen separaten rauen Treppenhauskubus herausgearbeitet. Der Kubus ist als additives Element durch Glasfugen von den übrigen Gebäudeteilen abgelöst. Die Innenräume sind geprägt durch das Zusammenspiel der einfachen Materialien und die imposanten Lichtstimmungen.

Projekt Gallerie

Neueste Produkte in unserem Katalog

Produkt Armadillo 2 des Herstellers Altek anzeigen
Produkt Tuboo des Herstellers Plam Studio anzeigen