Project Header Image
    Startseite/

    Townhouse Horgen

Townhouse Horgen

Horgen (Zürich), 2011

Foto vonBeat Bühler
Foto vonBeat Bühler
Foto vonBeat Bühler
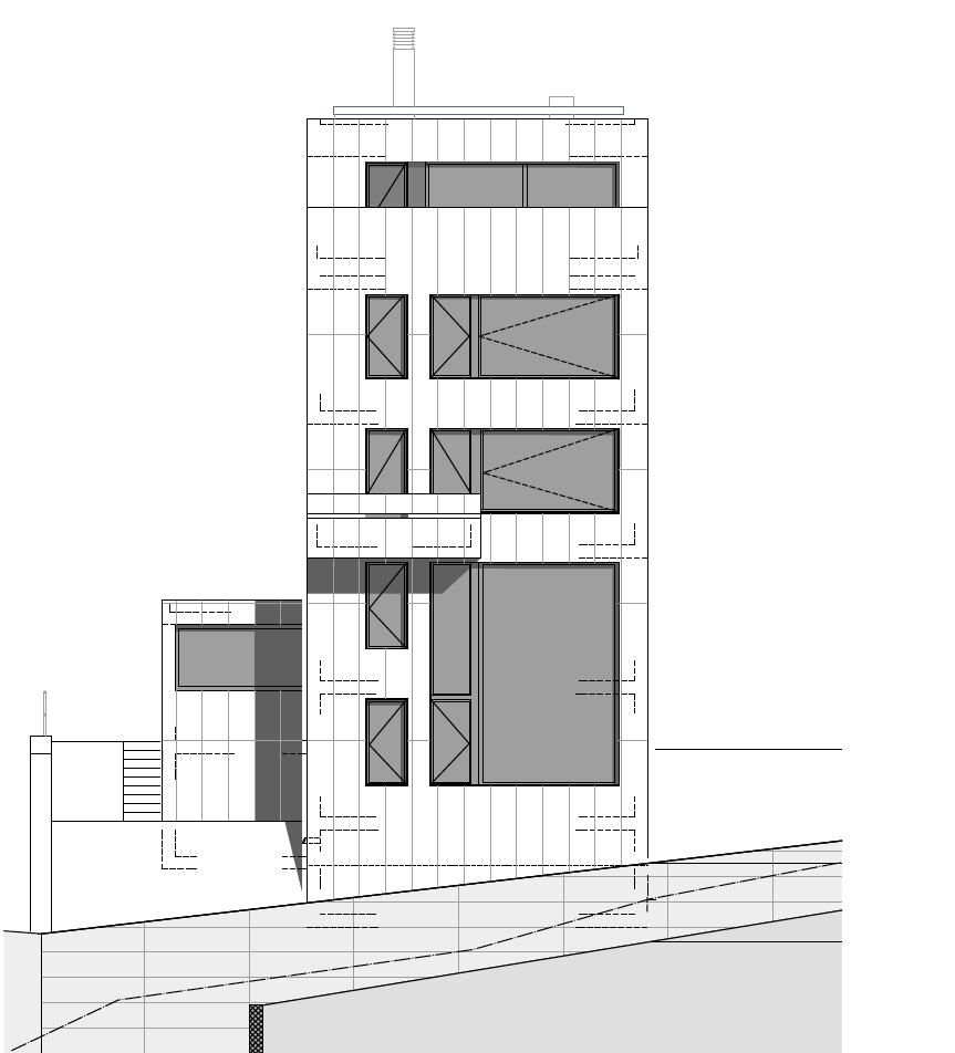
Das Einfamilienhaus mit einer beeindruckenden Aussicht auf den Zürichsee steht in der Nähe von Zürich. Die präzise geplante Gebäudehülle wurde aus Weisszementbeton erstellt. Die einzelnen Geschosse sind halbgeschossig versetzt (Splitlevel). Dadurch bildet sich eine innere Raumskulptur, die immer neue Sichtbezüge zulässt. Durchblicke und unterschiedliche Raumhöhen, die auf die verschiedenen Raumnutzungen reagieren.
Das Gebäude wurde nach neusten ökologischen und ökonomischen Erkenntnissen (low energie, Minergie®-zertifiziert) gebaut. Die Erdsondenheizung mit einer sommerlichen Kühlfunktion erzeugt auf ökologische Weise die wärmende Energie.
Die sorgfältige Materialauswahl sorgt für eine natürliche Behaglichkeit. Das warme Eichenholz und die exklusive Leinentapete harmonieren mit den zementgrauen Sichtbetondecken und abgeschliffenen Sichtbetonböden. Die Fensterrahmen sind innen ebenfalls aus weiss geölter Eiche. Die äusseren Fensterrahmen aus Aluminium wurden mit einer einzigartigen Eloxierung veredelt. Sämtliche Waschbecken sowie die Wandverkleidungen bei den Duschen und im Bad wurden aus echtem Travertin erstellt.
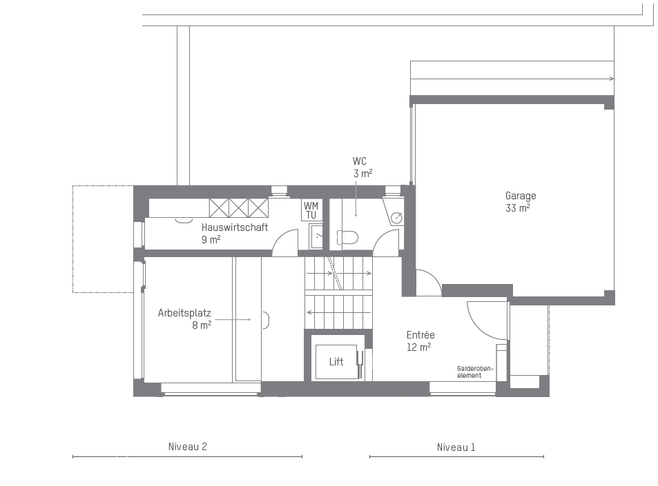
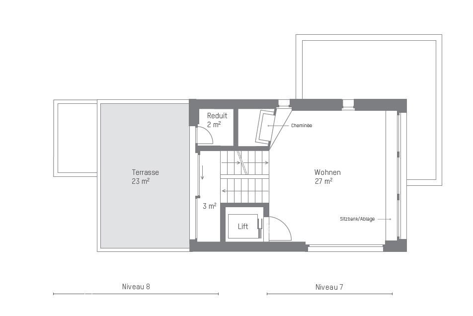
Das umfangreiche Raumprogramm (Atelier, zwei Schlafzimmer, Masterbedroom, Ankleide, Esszimmer, Küche, Wohnzimmer mit offenem Kamin, Dachterrasse, Duschen, Bad, Doppelgarage mit Vorfahrt, Gartensitzplatz und klimatisierter Weinkeller) ermöglicht ein komfortables Wohnen.
Sämtliche technischen Installationen (Elektroleitungen, Lüftungsrohre, Bodenheizung, Wasser- und Abwasserrohre) sind in die Betondecken eingelegt. In allen Badezimmern befindet sich ein Wäscheabwurf, der die verschmutzte Wäsche direkt zur Waschmaschine befördert.
Die 260m2 grosse Wohnfläche generiert ein Gebäudevolumen von 1’200m3. Das Gebäude wurde im August 2011 fertiggestellt.
Dieses aussergewöhnliche Einfamilienhaus ist noch nicht vermietet (siehe Anzeige zuoberst auf dieser Seite).
PBM Planungs- und Baumanagement AG
ibeg bauengineering gmbh
Elprom Partner AG
christian.herrmann.bau.energie.umwelttechnik
Müller Illien Landschaftsarchitekten GmbH
Foto vonBeat Bühler
Foto vonBeat Bühler

Projekt Gallerie

Neueste Produkte in unserem Katalog

Produkt On the Rocks des Herstellers Edra anzeigen
Produkt Miki des Herstellers LEMA anzeigen