Project Header Image
    Startseite/

    Novartis Campus

Novartis Campus

Basel, 2014

Projekt von

MACH ARCHITEKTUR
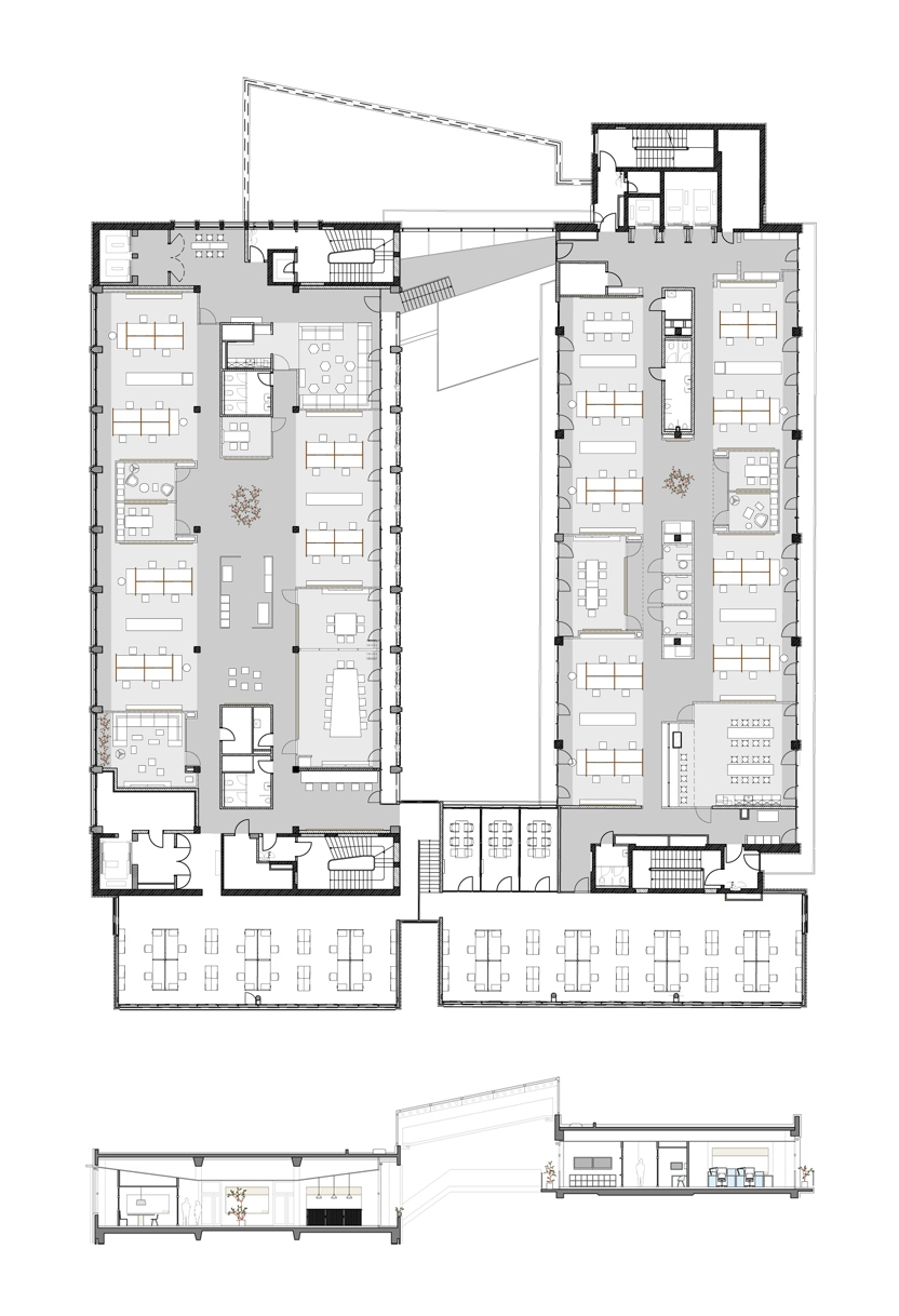
Bevor der pharmazeutische Pionier Novartis ein neues Produkt auf den Markt bringt, gehen zuvor bis zu zehn Jahre mit der Forschung, Entwicklung und ständiger Teamarbeit ins Land. Die Herausforderung lag für uns darin, einen Arbeitsbereich in der Firmenzentrale zu schaffen, der die Spitzentalente während dieses langwierigen Prozesses motivieren und inspirieren sollte.
Wir verwandelten ein bereits existierendes 1.300-Quadratmeter-Großraumbüro in sieben ‘Stadtteile’, wobei unsere weltweiten Lieblingsviertel als Inspiration dienten. Sie sind verteilt über zwei Flügel. Jeder Stadtteil sieht dem anderen ähnlich und ist doch einzigartig durch seine Lage in Bezug auf zwei verschiedene ‘Wahrzeichen’: eine Kaffeebar in dem einen Flügel und eine entspanntere Teebar in dem anderen. Um den dynamischen Unternehmergeist zu fördern, zu dem Novartis sein Personal ermutigt, gestalteten wir den Bereich wie für ein schwungvolles junges Unternehmen statt für einen globalen Riesen. Beispielsweise installierten wir spezielle ‘Schreibwände’, an denen Teams grobe Ideen festhalten und diese dann über Monate hinweg abwägen, verfeinern und wieder wegwischen können. Zum Brainstormen und für private Momente kreierten wir außerdem kleine ‘Blasen’, in die man zum Nachdenken und für eine kleine Auszeit flüchten kann.
Design und Planung: MACH Architektur GmbH, Zürich
Zusammenarbeit: Addministra GmbH, Pratteln

Projekt Gallerie

Neueste Produkte in unserem Katalog

Produkt Stripe des Herstellers Rimadesio anzeigen
Produkt Zamia des Herstellers GLAMORA anzeigen