2023
Projekt von
Toledano +ArchitectsTags
Innenarchitektur
House for 2 Architects is the renovation of an apartment from the 19th century in front of the Luxembourg Garden in the Latin quarter of Paris. Because the apartment is on the 5th floor, the views are very impressive and we wanted to highlight that quality. In a dense city like Paris, light is one of the main elements to enhance.
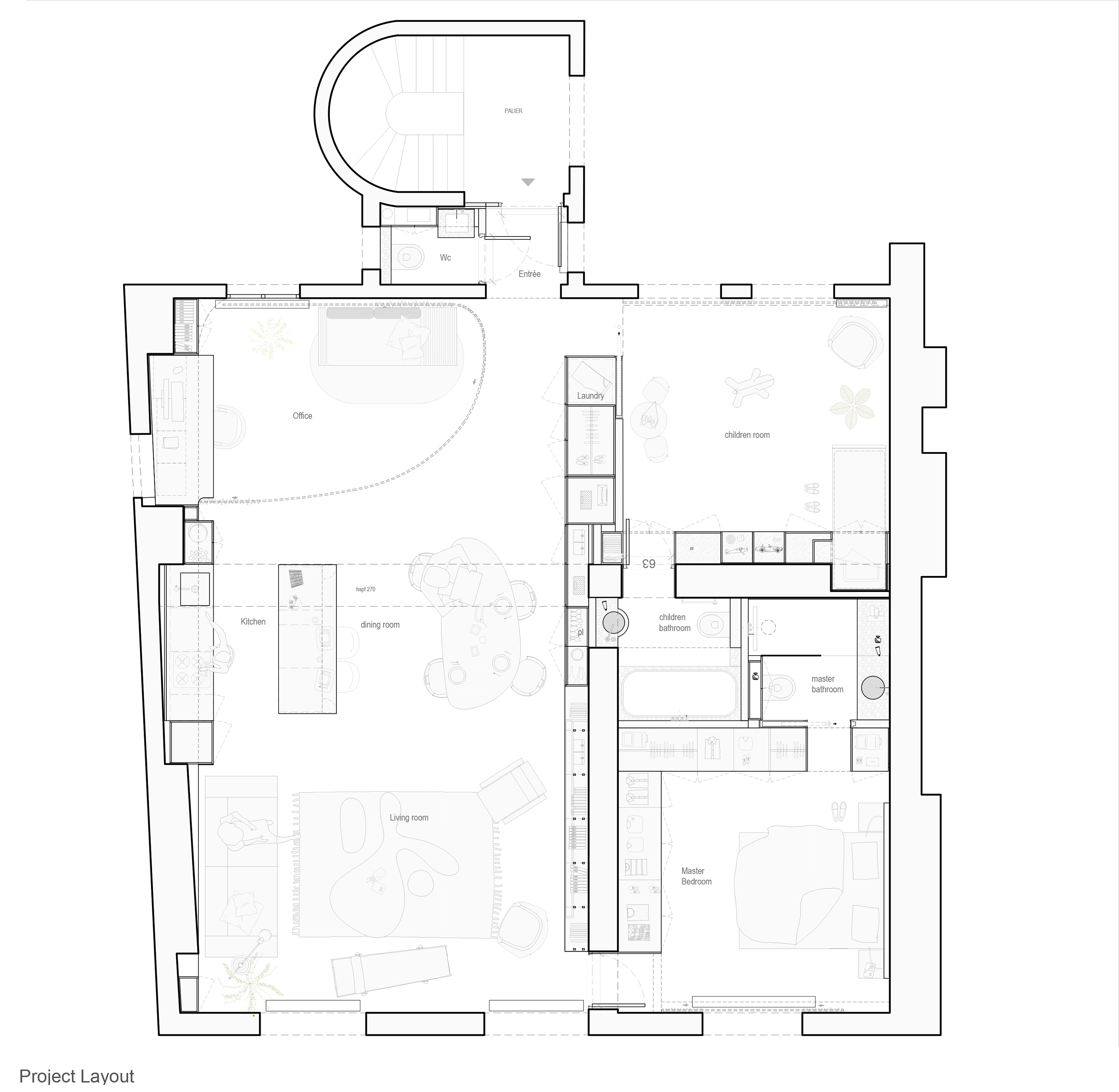
The original layout was very partitioned, with lots of small mono-oriented rooms. The idea was to open up the plan to have double exposure, east to west, and be able to see the sun's path from morning to night. To achieve that, we had to break a 50cm wide bearing wall. The metal beam used to reinforce the structure was highlighted in pale green as a reminder of what was there before.
The apartment is designed for a family of 4, with 2 small kids sharing a bedroom with bunk beds and a bathroom, on their side of the apartment.
The space is divided into 3 parts: the main living space which includes a kitchen, dining room, living room, and a home office; the parents’ bedroom suite and children's bedroom suite, on opposite sides.
The day and night spaces are separated with a long continuous walnut wood element from east to west that contains and hides the laundry, storage, the bookcase and a home cinema.
In the main area, the home office is equipped with a circular felt curtain to be able to close the space, and even make it a 3rd bedroom when needed. The felt helps isolate from the noise. When opened, the space enables to hosting of large dinner parties.
In terms of materials, all the walls were covered with natural lime, because of its benefits for the quality of the air, the isolation as well as the warm atmosphere it creates. The kitchen was made with vibrated stainless steel to reduce the fingerprints from the kids and resist through time. The kitchen island is made from travertine stone, to blend with the light parquet floor. Walnut wood and stainless steel were used in the bookcase to bring some warmth into the space and also in the master bedroom.
In the kids' bedroom, plywood was used to create the bunkbeds, closets, toy storage and bookcases to create a playful and young environment.



















