Project Header Image
    Startseite/

    Die Grüne Welle

Die Grüne Welle

Wien, 2010

• [Fotograf]

Von

© SUPERBLOCK

• [Fotograf]

Von

© SUPERBLOCK

• [Fotograf]

Von

© SUPERBLOCK
Unsere Städte wachsen und ihre Grenzen verschieben sich zunehmend nach Außen. Eine beispielhafte Wohnbebauung am Rande von Wien -am Übergang von Stadt zu Land- stellen das Architekturbüro SUPERBLOCK und der Bauträger WBV GÖD mit dem Projekt „Die Grüne Welle“ nun fertig. Das Projekt ging 2010 als Sieger aus einem Bauträgerwettbewerb mit dem vorgegebenen Thema „sicheres Wohnen“ hervor. Mit seiner städtebaulichen Anger-Struktur und seiner funktionalen Dichte stärkt die geförderte Geschosswohn- und Reihenhaussiedlung die Siedlungsgemeinschaft, schafft überschaubare nachbarschaftliche Gefüge und fördert mit typologischer Vielfalt die soziale und generationenübergreifende Durchmischung der Bewohner.
Angelehnt an die in der Nähe errichtete Wohnhausanlage von Victor Hufnagel aus dem Jahre 1983, die schon damals die Idee einer verdichteten Gartenstadt verfolgte, wirkt die „Grüne Welle“ durch den Entwurf einer stringenten linearen Angerstruktur der Zersiedelung des Landschaftsraumes und dem Produzieren von nicht nutzbarem Abstandsgrün entgegen.
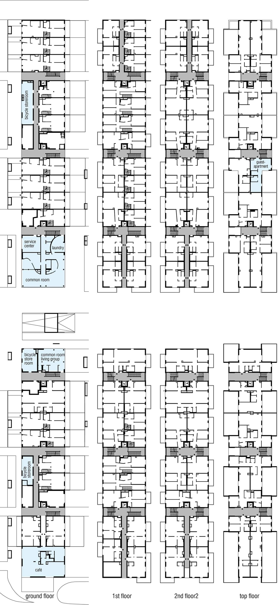
Der dörfliche Anger wird durch zwei geschwungene Stränge von Reihenhäusern gebildet und zoniert die Freiräume klar in Öffentlich (Anger) und Privat (Gärten), begleitet wird die Reihenhausstruktur von einer Zeile Geschosswohnbau, in der sich die Gemeinschaftsräume und die Garage auch für die Reihenhausstruktur befindet.
Die Geschosswohnbauten begleiten die neu errichtete Siedlungsstraße und bilden den räumlichen Konnex zum zukünftig dichter bebauten Neubaugebiet. Die optisch signifikante Wellenform der Reihenhaussiedlung dahinter schafft einen zentralen Anger, der als gemeinschaftlicher Erschließungs-, Kommunikations- und Aneignungsraum alle Bewohnergruppen zusammenführt und verschiedenste Nutzungen aufnimmt: Spielwiesen, Fahrradabstellplätze, eine Hundezone und den Häusern vorgelagerte Vorgartenzonen, die von den neuen Bewohnern angeeignet und gestaltet werden können.
Dem Anger als frequentierten Raum für die Siedlungsgemeinschaft stehen die Gärten auf den ruhigen Rückseiten der Reihenhäuser gegenüber, die durch eine begrünbare Pergola-Konstruktion in Zukunft noch mehr an Privatheit gewinnen werden. Auch jeder Wohnung in den Geschosswohnbauten sind große Gärten, Balkone oder Dachterrassen zugeordnet, deren seitliche Wände aus Sichtbeton den Fassaden eine tiefe Plastizität verleihen.
Für die Bildung von überschaubaren, nachbarschaftlichen Gefügen wurden die Wohneinheiten in kleine Gruppen segmentiert – Hauszeilen von maximal 8 Reihenhäusern und Stiegenhaus-Gemeinschaften von maximal 16 Wohnungen. Dies fördert auch das individuelle Sicherheitsgefühl, was durch diverse sozial-verträgliche Maßnahmen noch verstärkt wird, wie dezidierte Hundefreundlichkeit in der Siedlung und zwei Hausbesorger, die als Bewohner der Anlage für niederschwellige Betreuung sorgen.
Wesentlich für ein gutes soziales Gefüge ist eine funktionale Dichte und eine nachhaltige Durchmischung der zukünftigen Bewohnergruppen:
Die Reihenhaussiedlung besteht aus drei verschieden dimensionierten Haustypen, im Größten mit fast 140 m2 ist genug Platz für eine mehrköpfige Familie oder kombiniertes Wohnen und Arbeiten. Das Mittlere deckt mit 95m2 die klassische Nachfrage nach 4 Zimmern ab, wohingegen das Kleinste mit nur 65m2 und drei Zimmern alles bietet, was ein Haus braucht, und durch seine entsprechend niedrigen Kosten für breite sozialen Schichten und differenzierte Familienformen die Möglichkeit des eigenen Hauses im Grünen bietet.
Auch die Geschosswohnbauten weisen eine große Bandbreite an verschieden Wohnungstypologien auf: Durchgesteckte Maisonette-Typen im Erdgeschoss, darüber kompakte Zwei- bis Drei-Zimmer-Wohnungen und ganz oben verschieden große Dachterrassenwohnungen. Eine gesamte Stiege inklusive Gemeinschaftsraum steht einer Wohngruppe zur Verfügung, die mit begleitender soziologischer Moderation ein Modell der intensiveren Nachbarschaft lebt. Insgesamt sind zudem 10 % aller Einheiten (Reihenhäuser und Wohnungen) barrierefrei ausgeführt worden. Diese Bewohnerschaft wurde vor der Vergabe dezidiert angesprochen, indem Informationsmaterial für Behindertenverbände bereitgestellt und Infoveranstaltungen (z.B. in Integrationsschulen, Verein Balance) initiiert wurden.
Die Wohngruppe sowie die Initiativen während der Einwohnphase wurden von Wohnbund_Consult und der Freiraum von Land in Sicht begleitet.
Das Erdgeschoss erfüllt verschiedenste Funktionen des täglichen Bedarfs: Fahrrad- und Kinderwagen-Abstellflächen, eine Waschküche, ein Geldautomat, ein multifunktionaler Gemeinschaftsraum und die Servicezentrale, die erste Anlaufstelle der Nachbarschaft bei Fragen und Problemen ist.
In zweien der Reihenhäuser hat erfreulicherweise eine betreute Jugendgruppe des SOS-Kinderdorfes sein neues Zuhause gefunden und auch Menschen mit besonderen Bedürfnissen finden Ihren Platz, denn das Angebot der barrierefreien Wohnungen wurde stark angenommen.
Insgesamt wurde so eine Siedlung geschaffen, die mit privaten, beruflichen oder gesundheitlichen Veränderungen mithält und damit zum nachhaltigen - weil langfristigen - Zuhause werden kann.
SUPERBLOCK ZT GmbH

• [Fotograf]

Von

© Hertha Hurnaus

• [Fotograf]

Von

© Hertha Hurnaus

Projekt Gallerie

Neueste Produkte in unserem Katalog