Project Header Image
    Tuis/

    House Taishido

House Taishido

Tokyo

Etikette

Architecture

Neko no Ie (The Cat House)
A century ago, the famous Japanese novelist Sosuke Natsume wrote a novel called “I Am a Cat (Wagahai Wa Neko De Aru).” It is written from the point of view of a cat. The cat, who remains nameless during the novel’s first chapter, lives in a house with a teacher and his family. He is angry that he is not regarded as an equal member of the family in this household. “I will never catch mice,” the cat announces haughtily, not wishing to make himself useful. What if, however, there was a house, which has been designed specifically with a cat in mind? What would it look like? The Japanese architect Akira Koyama of Key Operation Inc. has recently designed a house for a young family, which included a pet cat, in the densely populated Taishido district, west of Tokyo. Undoubtedly, this house would have made Natsume’s cat green with envy.
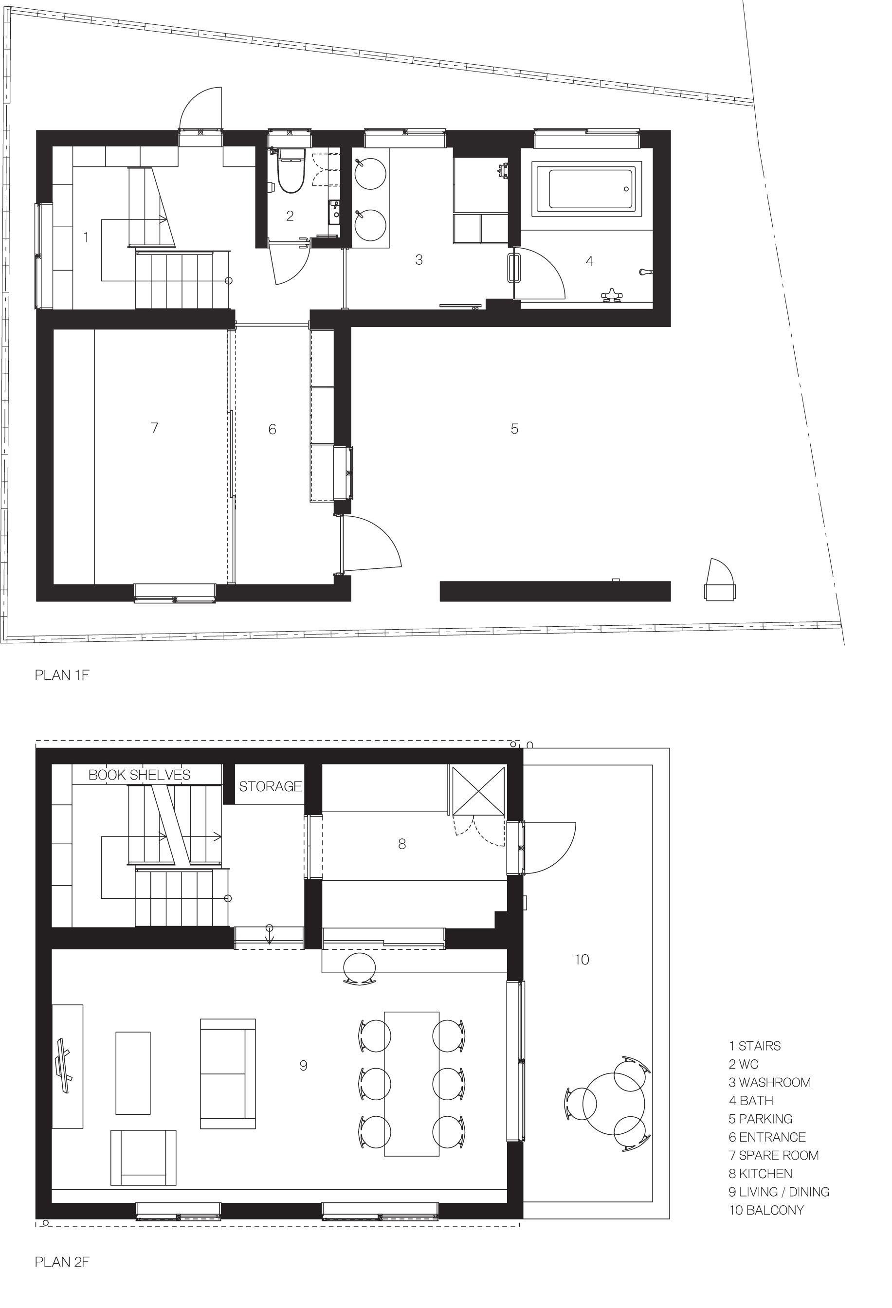
Neko no Ie (The Cat House) stands on a typically compact, rectilinear site (7 meters wide, 12 meters deep) along a narrow residential street, just big enough for a single car to pass through. Although the plot is small, the client (including the cat) did not specify the need for an outdoor garden space, and so the architect decided to set the house back by 3 meters from the street, thereby creating a void, synonymous in Japan with a sense of luxury. The upper section of the house is further set back from the ground level, generating a balcony.
It is generally perceived that the Japanese architects have a greater freedom of expression than the Western counterparts but we forget that there are a number of restrictions that the Japanese architects face when designing buildings in Japan, and this is no exception. There is a law, for example, restricting the owning of a car to those who can ensure its parking space. Neko no Ie, like many houses on the street, accommodates a garage within the house. The architect faced yet another restriction imposed in this area. It forbade the use of bright colours on exterior facades so that the ‘scenery’ of the area is conserved. Neko no Ie’s grey stucco façade complies with this regulation. Undeterred, however, Koyama subtly managed to subvert both of these restrictions by painting the inside of the garage bright pink, therefore making a feature out of what is usually a dark and dingy space and injecting much-needed playfulness in this otherwise boring grey neighbourhood.
The house’s asymmetrical roofline maximizes both its playfulness as well as its volume. The architect has created within a complex interior space consisting of rooms of varying sizes, which are stack on top of each other over three floors. One would not be able to observe such a structure from outside of the house, but it reflects the layout of the area, which has a mixture of detached houses, both large and small. The biggest room in the house is the dining/living room, stretched horizontally to fit the whole width of the house. By extending the room vertically, the architect has opened up this room to the rest of the house. What look like shelves jutting out of one wall of this room are actually steppingstones for the pet cat to enter into the adjacent rooms through the openings placed higher up on the wall. This arrangement leaves the ample staircase and landings, which double up as a library, undisturbed from the burst of activities of the feline member of the family, while the rest of the family uses them as a place of quietude. Moreover, just as the garage became the visual focal point for the exterior of the house, the staircase, painted also brightly pink, signals a gathering of all the separate interior sections of Neko no Ie.
By varying the sizes of the rooms and painting them in different colours, the architect has emphasized their uniqueness and separateness. At the same time, he has managed to link the rooms through small and large openings so that none of the rooms is completely isolated. Autonomy is respected but isolation is discouraged. For instance, a large opening in the wall of the dining/living room, which looks into the kitchen, allows the person who is cooking to connect with the person who is being served. In the meantime, the cat can slip into the study located above the kitchen through yet another, this time smaller, opening. The rooms’ co-dependence is thus implicitly emphasized. Neko no Ie is a symbolic celebration of the emergence of the modern Japanese family, more democratic than the traditional one preceding it, allowing each member to flourish independently while nurturing a supportive environment. Ironically, a pet cat was an integral part of it.
(Text by Yuki Sumner 2011)
Private
Structural Engineer: aR Structural Engineering
Construction: Tokyo Gumi

Projekgalery

Nuutste produkte in ons katalogus

Vertoon produk T13 van vervaardiger Extendo