Project Header Image
    Tuis/

    E’SPA @ Gianfranco Ferrè

E’SPA @ Gianfranco Ferrè

Milano, 2002

In downtown Milan you can often find unexpected green oases hidden inside private spaces, protected by severe facades and heavy wooded doors. Looking onto one of these oases inside the famous “fashion rectangle”, you can find E’SPA @ Gianfranco Ferrè. Here, taking care of yourself and being treated by skilled therapists who use the latest relaxation and massage techniques allows you to reach new levels of wellness.
Aroma therapy, color therapy, heat treatments and relaxing effervescent baths in the “vitality pool”, designed specifically to evoke feelings of tranquility, are all on offer in an elegant atmosphere where you can forget the anxiety of city life while lying on soft mattresses that look onto an interior green oasis.
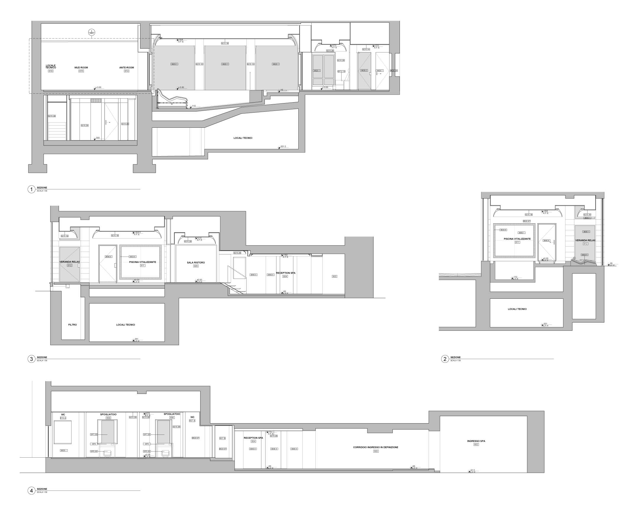
The spa, about 200 square meters in size, was built into the ground floor of a stately Milanese building. Access to the spa is through an entry space shared by the Gianfranco Ferrè boutique. The absence of products on display and the enveloping monochromatic, corner-less, eggshaped space with magical projections that wrap around the space and the guest, immediately invite discovery and abandonment.
From here, you proceed along a passage that leads to the actual treatment reception area. The flooring gradually changes color, passing from beige to gold, from gold to brown and then to black, through shades of custom-made glass tiles.
The dark colors of the flooring and furnishings offset the ivory colored stucco walls and gold ceilings. The lighting is suffused, never direct, and is often hidden above plaster vaults in the false ceiling, allowing it to float above the space.
From the reception area, you proceed to the changing rooms, the treatment rooms and the relaxation areas. A bridge made of wengè wood suspended along the edge of a pool defines the path that leads to the various areas. In the elegant VIP lounge, equipped with its own changing room and bathroom, you can access the central area of the “vitality pool” and relaxation room where the color therapy is especially effective thanks to three large light panels that create a Persian blind effect opposite the windows facing the garden. Two fountains, designed as walls of water made out of black Portoro marble, complete the space and face the entrance to the treatment area. The subtle and continuous trickle of water from these fountains comforts and intensifies the relaxing sensation. The vaulted ceiling in this room, particularly important since the room is experienced mainly while lying down, has been treated with gold metallic paint that enhances the feeling of wellness. Each single section of the relaxation area is delineated by columns that provide a sense of privacy and topped by a vaulted golden “hood” above. The light, colored and ever-changing, comes down into the room through the spaces between the single ceiling vaults. The windows that look onto the garden soften external light with light-amber colored glass.
Heat treatments are experienced in a special purpose built area. The atrium, where mud treatments for the Rasul bath take place, is furnished with two gold mosaic shower niches. Here, you can experiment with sensations like tropical rain, cool fog or simple effervescent baths lit in ever-changing colors.
Opposite the entrance door, a black Portoro marble tub contains an ice fountain for use after heat treatments. The Rasul bath area and the heat treatments themselves are rooted in classic Turkish bath traditions. Three stations are set into niches with mosaic tiles that fade from black to gold. At the center of each niche, steam emerges from a short black Portoro marble column with a gold mosaic sphere mounted on top of it. From a perforated ceiling, fiber optics emit light in constantly changing colors.
All the materials and colors used in the E’SPA @ Gianfranco Ferrè spaces were carefully selected according to the exact specifications of Gianfranco Ferrè. The above mentioned mosaics and the wood used for the furnishings have a glossy finish. Elm root-wood is matched with natural “Canaletto” walnut or treated ebony, pairing a book-matching veneer or herring bone patterns with master craftsmanship.
Ivory-colored leather finishings make the interiors even more detailed. Translucent silver mica screens shield the treatment and changing room entrance areas. All the furnishings have been custom designed specifically for these spaces. The small armchairs, made from wooden shells with soft joints, highlight, through changes in materials, the contrast between solid wood and veneer. The “chaise longue” in the relaxation area features a seat in ebony stained wood that curves over a masonry base, covered with soft cushions in ivory-colored leather and a headrest. The throne-like quality of the armchairs used for foot treatments make guests feel welcome and relaxed during the therapy. The cabinetry and the wall treatments feature veneer finishes and the slits between the panels form a pattern that is bound to remain a vivid memory to visitors. Each element has indeed been designed in order to make the experience of the space extraordinary, rich, relaxing and far from simply satisfying technical or functional requirements. The service tables in the relaxation area were made by pairing sheets of plexiglass and silver mica mounted on a base of egg-shaped plexiglass “pearls”. The make-up tables in the changing rooms, on the other hand, feature combinations of more traditional materials like gloss woods mixed with more high-tech materials like corian.
The wall lamps are candle-shaped pieces of plexiglass with orange-toned filtered led lights placed in a wooden base. The lights in the make-up areas in the changing rooms also utilize led lighting diffused through small plexiglass shelves. At the entrance hall to the Rasul bath, a light designed by Giuseppe Mestrangelo hidden by black glossy corian cabinetry, perfectly frames the ice fountain.
In the entrance and reception areas, the passage to the treatment areas is marked by Kreon mod. Flat Up recessed floor lighting fixtures. The reception desk is lit directly on its surface by a linear lamp hidden in the desk itself (Horst Lettermeyer mod. Light Line 9 for Betec). The walls feature candle-like lamps (see side section for details) designed by Massimiliano Rizzo and produced expressly by Siem. The space is made more welcoming thanks to Orione Tavolo by Rodolfo Dordoni for Artemide, placed in the niche opposite the reception.
All the ceiling lighting (both recessed and above ceiling neon fixtures) in the treatment rooms, the changing rooms and related service areas was custom-made by Siem according to the designers’ specifications. In the treatment rooms, along the sides of the ritual chair and the make-up area in the changing rooms, the direct swiveling lighting is provided by Mexcal P.S. and Spot by Mario Nanni for Viabizzuno. Several Light Line 9 fixtures, recessed into the cabinetry, light the work areas. Candela softens the setting and marks reference points inside the various spaces. The shower areas are lit by Kreon wall recessed fixtures.
The pool and relaxation areas feature lit walls and ceilings with neon lighting systems that change color. On the pillars the wall-washer lamp Hako by Davide Groppi and Alberto Zattin for Davide Groppi utilizes the gold tiled surface of the ceiling as a reflecting surface. In the foyer to the mud treatment area, groups of Kreon Mini Down are placed together on the ceiling while on the floor a pair of Flat Up fixtures mark the entrance door. On the opposite wall, the ice fountain is lit directly by cut-out light custom-made by Light Studio for a project by Giuseppe Mastrangelo. The mud treatment area and showers feature ceilings lit by Swarovski fiber optics that change color, designed and installed by Decklmann, who also produced designs for the mud treatment rooms.
EZIORIVA Architetto

Projekgalery

Nuutste produkte in ons katalogus